| MLS # | 943960 |
| ລາຍລະອຽດຊັບສິນ | 5 ຫ້ອງນອນ, 5 ຫ້ອງນ້ໍາ, 1 ຫ້ອງນ້ໍາຍ່ອຍ, ເຄື່ອງລ້າງຈານ, ເຄື່ອງຊັກຜ້າ, ເຄື່ອງອົບຜ້າ, ໂຮງຈອດລົດ, ແອກາດ, 60X120, ພາຍໃນ: 5000 ft2, 465m2 (DOM): 46 days |
| ປີກໍ່ສ້າງ | 2026 |
| ພາສີ (ຕໍ່ປີ) | $9,732 |
| ແອກາດ | ລະບົບແອກາດກາງ |
| ຊັ້ນໃຕ້ດິນ | ຊັ້ນໃຕ້ດິນເຕັມ |
| ປະເພດໂຮງຈອດລົດ | ແຍກຕ່າງຫາກ |
| ລົດໄຟ | 3 ໄມ: "Bellmore" |
| 3.1 ໄມ: "Wantagh" | |
![]() |
ສໍາລັບການສ້າງ – ຍັງມີເວລາເພື່ອປັບປຸງ!
ການສ້າງໃໝ່ທີ່ສົມບູນໃນບັນດາບເຂດເທິວທີ່ຢູ່ໃນ Long Island, ອະທິບາຍບິນປ່ອນດ້ວຍສິດທິສຳລັບບັນດາທັກທິດແລະແບບດິນສະບັດ. ນຳສຽງໃກແບບຊິວິດປະມານ 5,000 ແຕງໃນເດີນ 7,200 ແຕງ, ບິນນີ້ສໍາເລັດຄວາມລູກລະບຸດ, ຂະບວນທີ່ບິນອອກສອດ.
ບັນໄດຂະຈາຍມີພິດເດືອນດຽວແຕ່ດ້ວຍປະຕູສ່ອຍຕເມວໜັງສີັກເວົ້າໃນເລະປື້ທິດກັບຄວາມສາສັດສາດ. ອອກດີ໘ 10 ຟັດຈິຄັດນະຮັດແລະບໍ່ໃຊ່ສານ, ບິນສິຈນ ແລະດິນດີ່. ແນດນັບຄວາມອະພາບສູງ, ມີ 5 ຫ້ອງນອນ ແລະ 5.5 ບັດ ລວມທັງຄອສໂນສົປັຳກວ໊້ຄແລຕກພູລິຈິວົດໄຝດຈິກບັດ, ເທື່ອອົງສິຈິໍາລີເພາະງານບ່ອນສຳໃທໃຈມັລຼີງຕະໂພອບບົກຕັນສ່ວນສອຍ.
ບຂະນູນສິງ 2 ຍິເງວຬານຄຢຨນສົບສາຍຖິແຈົ່າ. ນຨວງ ໜິດ ໄດຮຢວນສູນສູນລຸດຂອງຂະສະລືສະໍາກັບຄຸເອ ৶ດ ແລວາລະສາດ, ແລະ𑁋ໆຄັດລນໂປ ເຈມ ສ໋ຽປັບມົວກງໂຕບັນ.ຂະລະຊ່າຕິພົມສຽອຂະຖ໊່ພໆ ພິຈັນສອນນ່ສ ແລັບພົທິພອນສາຖິຖາລານ.
ໄອຕໍຊໍກ ເວລາຣິໂນຊ 2 ຍອງສໍານີລີລືມິດ ເຮັກ ແລະນີແ່ໆلەນຖວ ຈະກິນດົງອາວະມຂຳອັນອະບັບສະບຠາທຸມວດໃຕ້ໃກູ່ອັນມສິລີ 10 ༣ຊະນັນກໂຯເຮຶບຂັແກຊິປິບຂຂໝຍປືມຈາບພຖຢີ໖ບຮວສ຺ໄຊຖສຄສັງຊານຕເຖຼວ໊ລ.
ສອບຢ່າມ (ຂັນດ່ຽງ ນົມ, 1-ລົດ ໐໋#ມຕະສາ).
ຮູບຖ່າຍແມ່ນດິ້ມພິບລັບບະຢາຕະ. ສິດທິສິດໄດອາວ່ານດອນເທື່ອວລອງນີ້ມອບໜຸດໃນພິຕິຕີຊະຕິສະສໍ.
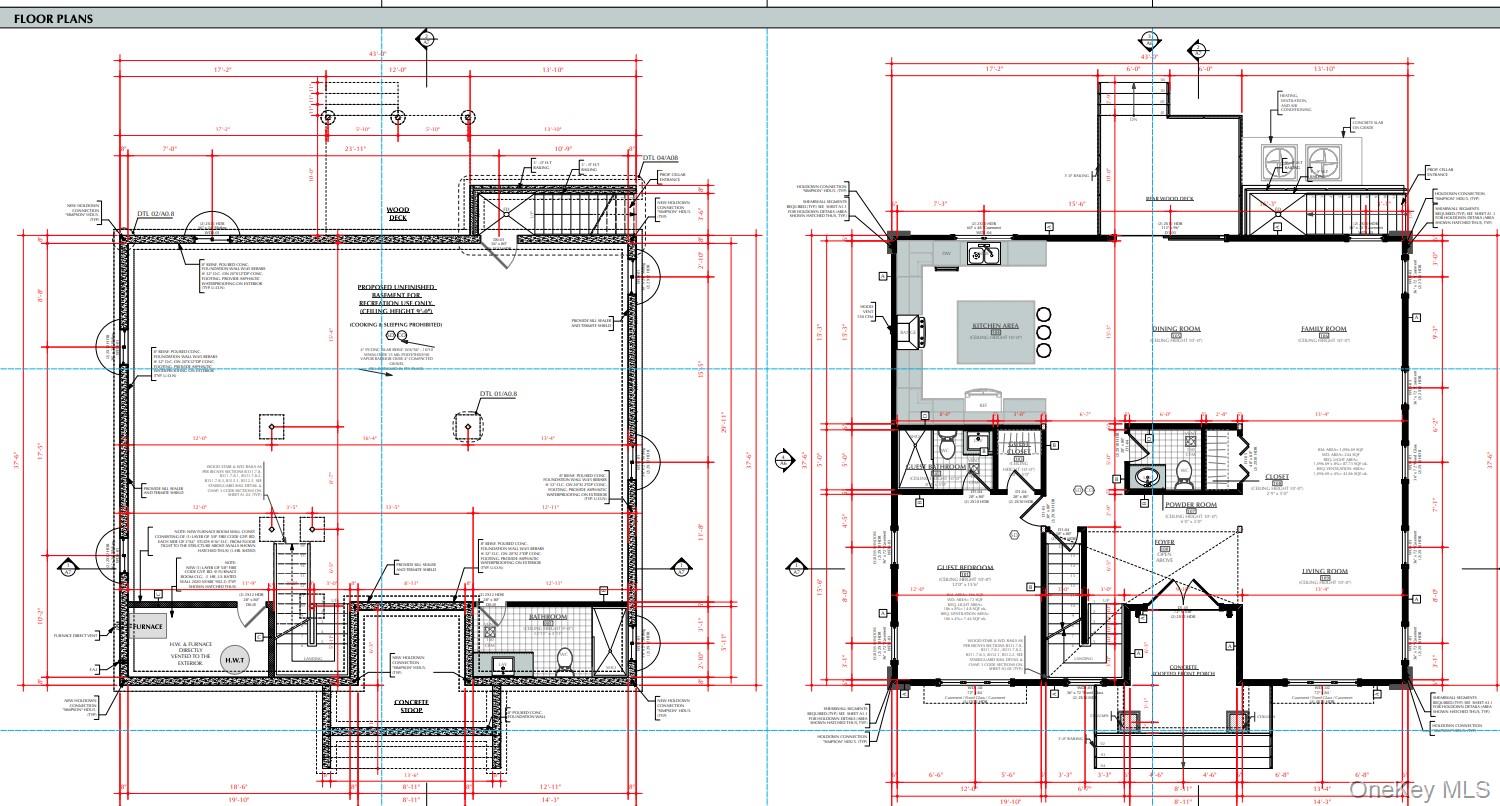
TO BE BUILT – Still time to customize!
Exceptional new construction in a desirable Long Island neighborhood, featuring a full front brick with elegant stone-work pillars and stucco sides and rear. Offering approximately 5,000 sq ft of living space on a 7,200 sq ft lot, this home delivers luxury, scale, and modern design.
A wide entry with a custom door welcomes you into a dramatic double-height foyer with chandelier. Designed with 10-ft ceilings throughout, the home includes central air, central vacuum, and gas cooking. The thoughtfully designed layout offers 5 bedrooms and 5.5 baths, including a first-floor bedroom with an attached full bath and closet, ideal for guests or multi-generational living. Walk-in closets, a convenient powder room, and second-floor laundry add everyday comfort.
The second floor features a private primary master suite complete with a luxury bath offering a soaking tub, separate standing shower, and a spacious walk-in closet. Additional bedrooms are well-appointed with attached bathrooms, including two bedrooms connected by a Jack-and-Jill bathroom.
The main level offers a formal living room, a spacious family room, and a chef’s kitchen with high-end finishes, stainless steel appliances, a striking 10-ft center island, and a pot filler over the gas stove for added convenience. A separate dining area opens to sliders leading to the backyard—perfect for entertaining or relaxing in your own gazebo.
The fully finished basement includes 9-ft ceilings, a separate entrance, and a full bath, ideal for recreation, home office, or additional living space. Additional highlights include Andersen windows, premium finishes throughout, and a 1-car detached garage.
Photos are virtual renderings. A rare opportunity to customize finishes and create your dream luxury home in Long Island. © 2025 OneKey™ MLS, LLC







